X

Our Service

サービス

会員制

データナビ

カタログコピーサービス・マンション事例データベース 参考事例データベース・賃料データベース・土地事例プロット

マンションの基本情報や相場情報を網羅

担保評価に必要な、各種不動産データがWEBの簡単な操作で取得できます。特にマンションに関しては日本最大級のデータベースを保有しており、マンションの物件詳細や各種図面、日々更新される売買事例など、物件や価格を把握するためのデータをご取得いただけます。また土地・戸建についても、地域の相場を把握するための各種データをご用意しております。

サービスの特長

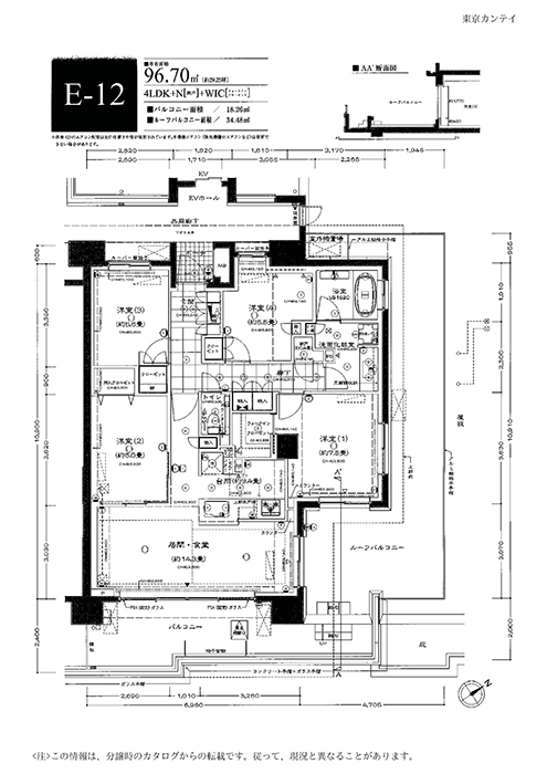
分譲当時のカタログが取得可能

最新の分譲マンションはもちろん、古くは昭和30年代に分譲されたマンションのカタログも保有しています。間取図・平面図・物件概要など、項目別に編集してご提供します。

売買事例・賃貸事例を時系列で取得可能

全国の新聞広告や折り込みチラシ、情報誌、デベロッパーや不動産流通会社から提供される成約情報や、不動産会社から提供される成約情報など、日々更新される売買情報、賃貸情報から、ご指定マンションの事例を時系列に整理してご提供します。

類似するマンションの売買事例から価格を捉える

評価したいマンションとグレード・築年・住環境などが類似している複数のマンションの売出事例や取引事例を、最新のものから時系列に一覧形式でご取得いただけます。売買事例が少ないマンション等の相場を把握するのに便利です。

土地の事例はすぐに評価出来るよう補正して表示

土地の相場を把握するツールです。東京カンテイの土地事例は、接道・地形・面積などを補正して、均一化した単価を表示します。条件の異なる土地同士でも、簡単に比準が行えます。

ご利用例

ご利用例1:担保評価時の参考資料として

  • ① マンションの物件概要や間取図が欲しい
    ② 効率よく売買事例を入手したい
  • マンションの物件概要や各種図面、さらには売買事例や賃貸事例など、担保評価に必要な情報を、簡単な検索で全て揃える事ができます。また土地の事例も、すぐに評価として利用できる補正済みの事例で提供します。

ご提供サービス

カタログコピーサービス

サンプルデータ

間取図

平面図

建築概要

価格表

マンション事例データベース

サンプルデータ

マンション事例データベース01

マンション事例データベース02

賃料データベース

サンプルデータ

賃料データベース01

賃料データベース02

参考事例データベース

サンプルデータ

参考事例データベース01

参考事例データベース02

土地事例プロット地図

サンプルデータ

土地事例プロット地図01

土地事例プロット地図02

土地事例プロット地図03

会員制サービスについて

会員制

というマークのついたサービスは、会員としてご入会いただいた法人様にのみ、不動産情報をご提供しています。

詳しくはこちら

関連サービス

会員制
不動産担保評価
住宅ローンやアパートローンを行っている金融機関の皆様向けに、担保評価や審査に必要なデータ、システムを提供しております。担保物件の管理や洗替えもお任せください。
詳しくはこちら
会員制
収益評価サービス
一棟賃貸アパート・マンションについて収益価格の算出、将来の賃料変動リスクを反映した収支判定を行うことができます。案件データは自動データベース化され、管理面でも活用いただけます。
詳しくはこちら
お問い合わせ